横浜駅から徒歩11分。
貴重な倉庫です。
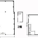
2階と3階は、事務所として利用できます。
・保証加入必須( 賃料の120%/初回、以降賃料の15%/各年)
・連帯保証人必須
・鍵交換費用:借主負担(任意)
※借主からの解約について
賃料発生日より3年間は解約不可。
3年以降、申出から6ヶ月後解約可能(解約月日割計算無)
|
88万円 |
|
|
| 所在地 | 神奈川県横浜市西区平沼1-9-7 平沼倉庫 |
|---|---|
| 交通 | 京急本線戸部駅 徒歩4分 JR京浜東北・根岸線横浜駅 徒歩11分 |
| 築年月 | 1977年8月30日 | 新築/中古 | 中古 |
|---|---|---|---|
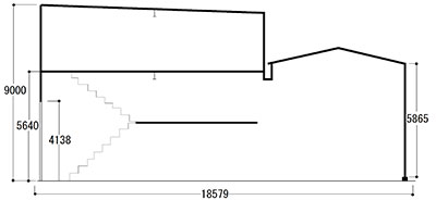
| 面積 | 510.34m² | 計測方式 | |
| バルコニー | m² | 向き | |
| 建物階数 | 地上3階 | 部屋階数 | 1階~3階階 |
| 部屋/区画番号 | 総戸/区画数 | ||
| 建物構造 | 鉄骨造 | ||
| 間取内容 | |
||
| 駐車場 | 取引態様 | 専任 | |
| 引渡/入居時期 | 即時 | 現況 | 空家 |
| 周辺環境 | |||
| 設備・条件 | その他■定期借家契約期間:5年間■賠償責任保険加入 ■連帯保証人必須+保証会社必須 ■仲介手数料:賃料の1.1ヶ月 ■お問い合わせ:本店 045-441-8522 |
||
| 物件番号 | |||
横浜駅から徒歩11分。
貴重な倉庫です。
2階と3階は、事務所として利用できます。
・保証加入必須( 賃料の120%/初回、以降賃料の15%/各年)
・連帯保証人必須
・鍵交換費用:借主負担(任意)
※借主からの解約について
賃料発生日より3年間は解約不可。
3年以降、申出から6ヶ月後解約可能(解約月日割計算無)